Residential Design
-

001
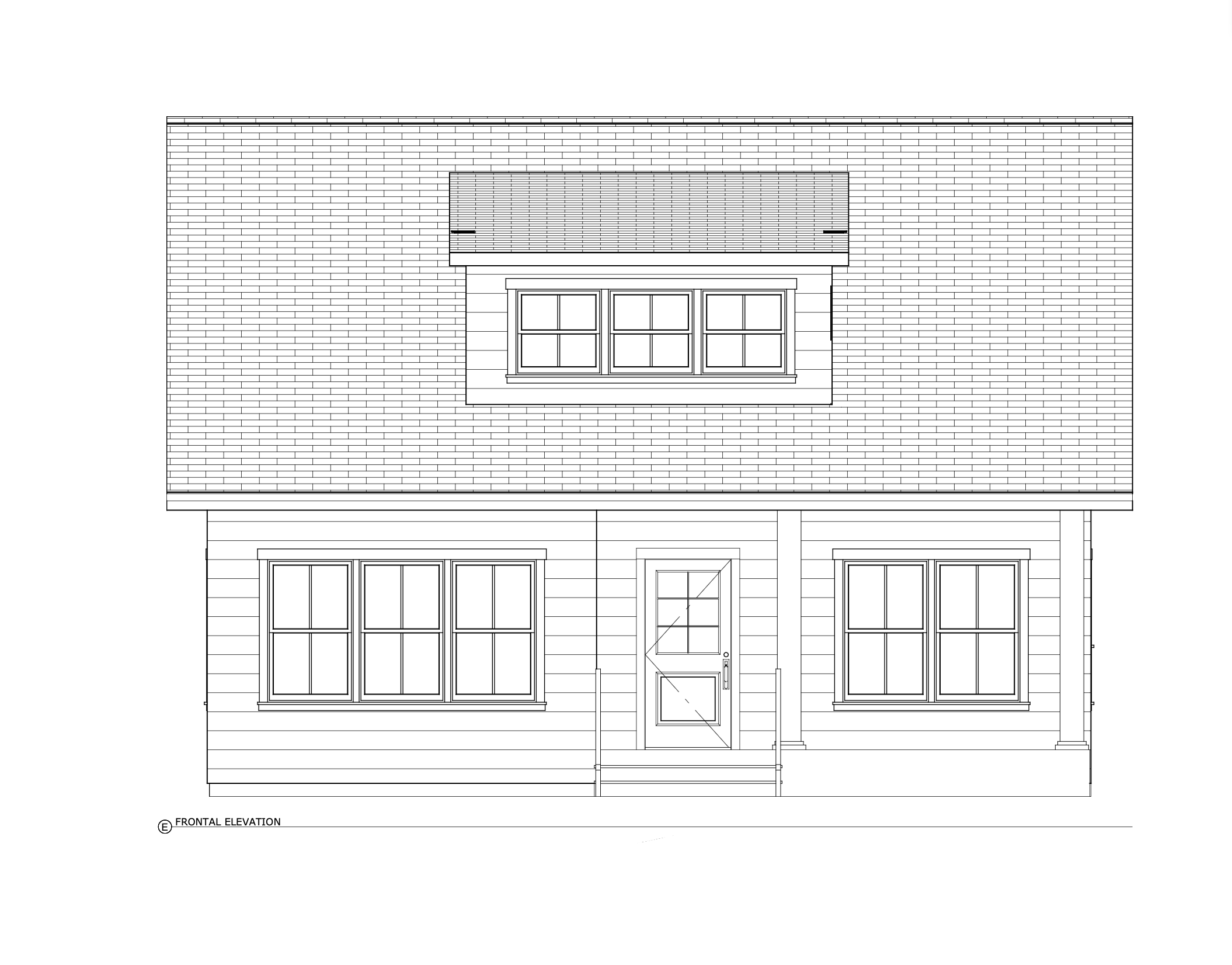
Single family home plans drawn for an HOA approval meeting.
-

002
Single family home plans drawn for an HOA approval meeting.
-

003
Single family home plans drawn for an HOA approval meeting.